Skip to main content
  • ConceptWall 86 Façades - Office building Höfdatorg located in Reykjavik, Iceland
  • ConceptWall 86 Façades - Office building Höfdatorg located in Reykjavik, Iceland
  • ConceptWall 86 Façades - Office building Höfdatorg located in Reykjavik, Iceland
  • ConceptWall 86 Façades - Office building Höfdatorg located in Reykjavik, Iceland
  • LWW Architekten
  • PK -Arkitektar

Höfdatorg

Reykjavik - Iceland - 2009

The second tallest building in Reykjavik forms part of an ambitious project which is intended to counteract the raw climate with elegant, optimistic and radiant architecture. The architecture contrasts not only with Iceland’s meteorological conditions, but also with the economic climate in which the tower was realised. The plans were drawn up in the years of prosperity, but the construction itself took place in the economically dramatic year of 2008, when the full extent of the financial crisis became clear.

The tower is part of Höfðatorg, a complex just a stone’s throw away from Höfði, the villa where Ronald Reagan and Michael Gorbachev met in 1986 to discuss nuclear disarmament. The nineteen-storey, seventy-metre tall tower is one of six buildings in the Höfðatorg complex, which is based on a master plan joint venture between PK-Arkitektar and LWW Architekten. The Icelandic bureau PK Arkitektar is responsible for the architectonic execution of the plan. The letters P and K are the initials of the bureau’s founder, Pálmar Kristmundsson. So far only two of the six volumes have been constructed, housing a mixed programme of living, working and relaxing. With its irregular rhythm of oblique surfaces in the otherwise flat façade, PK Arkitektar managed to create a lively expression. Aside from the technical realisation of this complicated façade, one of the most important questions was how to meet comfort requirements in the Icelandic weather conditions of extreme wind and low temperatures. The architect wanted a mullioned transom system with large clamped glass units on the ground floor. For the tower he wanted structural sealed glass parts, both fixed and moveable, integrated in a unitised system. A bespoke solution based on CW 86 element façade was selected so as to overcome the bad weather conditions which were expected during the installation and so that the system could be installed in the tower as quickly as possible.

ConceptWall 86 Façades - Office building Höfdatorg located in Reykjavik, Iceland

Skyline of Reykjavik

ConceptWall 86 Façades - Office building Höfdatorg located in Reykjavik, Iceland

Interior view: CW 86-EF profiles

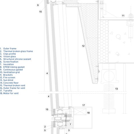
For the sloped glass parts, Reynaers developed a new unitised curtain wall system based on CW 86-EF. This curtain wall consists of a main frame, with the requested structural elements, fixed to the concrete structure of the building. Inside this frame, a fixed glass frame or top-hung frame supporting the glass was installed. All top-hung windows are motoroperated, and the motor is integrated inside the system. For this solution, Reynaers developed a 250 mm deep thermal broken outer frame construction with horizontal and vertical transoms to support the glass frames. The 250 mm-deep system was required to withstand the expected high wind speeds of up to 280 kilometres per hour. The wind load test of this system, up to 4000 Pa was the highest performance test until now executed at the Reynaers Institute. All these technical facilities made it possible to fulfil both the aesthetic desires of the architect and the technical and energy requirements. The result is a tower which has no equal in Iceland. During the crisis, Höfðatorg was seen as a symbol of the financial disaster which held the country in its clutches. Now that the economy is gradually recovering, it is possible to see the tower with a more optimistic eye. This architecture can be seen as a glorious victory over the many challenges in the face of which the tower had to be achieved.

ConceptWall 86 Façades - Office building Höfdatorg located in Reykjavik, Iceland

For the sharp and obtuse corners of the tower, special elements were fabricated

For the façade Reynaers developed four different unitised elements based on a 1.5m wide and 3.5m high module: completely fixed elements with vertical glass; elements with vertical glass and top-hung windows over the total width of the element; elements with sloped glass parts, either fixed or with top-hung windows; and corner elements of 64 and 116 degrees. For the sharp and obtuse corners of the tower, special elements were fabricated with custom made vertical T-profiles to achieve the desired visual effect. To retain uniformity, the structural silicone seal, which glues the glass onto the profiles, makes contact with the silicone seal between the inner and outer glass panes.

ConceptWall 86 Façades - Office building Höfdatorg located in Reykjavik, Iceland

Drawing; unitised element

ConceptWall 86 Façades - Office building Höfdatorg located in Reykjavik, Iceland

a - horizontal section sloped glass part

ConceptWall 86 Façades - Office building Höfdatorg located in Reykjavik, Iceland

b-b’: vertical section with sloped glass parts

Used systems

Involved stakeholders

Architect

  • LWW Architekten
  • PK -Arkitektar

Fabricator

  • Gluggar in cooperation with ASF

Photographer

  • Rafael Pinho

Other stakeholder

  • Eykt ehf., Reykjavik (General contractors)
  • Hans Ibelings (Authors)