Skip to main content
  • Apartmentcomplex 26 Pearl located in Odessa, Ukraine
  • Apartmentcomplex 26 Pearl located in Odessa, Ukraine
  • Apartmentcomplex 26 Pearl located in Odessa, Ukraine
  • Apartmentcomplex 26 Pearl located in Odessa, Ukraine

26 Pearl

Odessa - Ukraine - 2018

At the request of the customer, this façade solution was tested for tightness and easily withstood the set pressure mark of 2000 Pa, which in itself is an excellent indicator. 

At the seaside part of Odessa, the famous Arcadia, you can find the residential complex “26 Pearl” with incredible views and panoramic terraces on the top floor. The building, with a wavy glass façade, which reflects the sea and the sun, is one of the largest and most beautiful projects in the line-up of the developer KADORR Group. A large area of the front glazing and the shape of the building, which became the hallmark of the project, required the company to search for special engineering solutions. 

Apartmentcomplex 26 Pearl located in Odessa, Ukraine

Location: Odessa

Year: 2018

Developer: KADORR Group

Fabricator: Interwindows

The total area of the façade glazing: 10,500 m²

Characteristics: 25 residential floors, ground floor, 2 parking levels, 750 apartments

 

Apartmentcomplex 26 Pearl located in Odessa, Ukraine

ANDREY PROSVETOV - Project Manager, KADORR Group

KADORR Group is a leader of the construction industry in the south of Ukraine. Last year the company completed 12 complexes in 12 months. No other construction company could achieve this result. We are working on the construction plan, observing all building activites, town planning and architectural standards. Therefore, the pace, as well as the quality of construction are high.
The standards that we initially applied in our projects changed the specifics of construction as a whole. In the past, the construction of a building was only in the construction of the "box", then, we, as the KADORR Group, changed this dramatically by paying attention to public spaces, the quality of engineering systems, the landscaping and the appearance of the buildings themselves. Our company has made a significant contribution to the building industry and raised the standards of the construction market in Ukraine.

The residential complex "26 Pearl" has an irregular, curved look. The shape of the building was determined by both the site itself and by the desire to go beyond rectangular structures. The wavy glass façade makes the building unique. The project revived the architectural environment of the seaside as part of the city - the famous Arcadia.

Located in the heart of Odessa, the residential complex "26 Pearl" has an interesting exterior; a large number of translucent façades and terraces on the top floor with glass fencing. High-speed and silent elevators (speed 2.5 m/s) are installed on this project - probably the fastest in Odessa today. The building is also equipped with the best engineering systems: an autonomous boiler house, a pumping station with water storage tanks, a diesel generator and condensing boilers.

Due to the irregular shape of the building, it was not easy to design comfortable living spaces with enough daylight. On the other hand, there were many elements that were difficult to connect: a large number of abutments of translucent façades, the terraces and high-quality insulation requirements. These nodes, as well as the interfacing of different types of façades and solutions for heating, required special attention from engineers.

This large-scale project was built in just 25 months. The preparation took longer than the construction process itself, as the measures to strengthen the underground workings took quite a long time.

 

The shape of the building was determined by both the site itself and the desire to go beyond the rectangular structures.

The main architectural challenge facing Reynaers Aluminium, as the developers of the façade solution, was to create the impression of a smooth glass surface, as if the façade was constructed out of one piece. For this, structural glazing and the façade system CW 50-SC was used. For the implementation of the opening elements, the CS 77-HV system was chosen. This system was designed with a hidden sash, which supported the concept of a single glass façade without prominent elements that could violate the integrity of the appearance.

Apartmentcomplex 26 Pearl located in Odessa, Ukraine

OLEG TARAN - Technical Department Engineer, Reynaers Aluminium Ukraine.

We had already participated in tenders for the glazing of the residential complex of the KADORR Group, offering architectural aluminium solutions by Reynaers Aluminium. This gave us the opportunity to analyse the previous experience of the project participants in terms of installation and operation features of the selected translucent structures. In the work on the “26 Pearl” project, we tried to take into account the errors and to develop our own special solution on their basis. A solution that would not only meet the architectural objectives, but also help to achieve high technical characteristics and simplify installation.

The team of façade developers faced a variety of challenges. One of these challenges was the minimization of additional work on the installation of opening elements in the structural façade. At the same time, it was necessary to find a solution that would remain expedient in terms of its cost. And, of course, the solution had to meet high technological requirements and meet high thermal performance.

And we managed to develop a solution that meets all the above requirements. We optimized the material, reduced labour costs and time for the installation of the façade. At the same time, the solution is characterized by its high adaptability.

It is also important to note that it was the hidden vent, as a more hermetic solution, that improved the thermal performance. At the request of the customer, this façade solution was tested for tightness and easily withstood the set pressure mark of 2000 Pa, which in itself is an excellent indicator. This requirement is necessary due to the location of the project. As we know, Odessa and its coastal zone are distinguished by high wind loads, which places high demands on system solutions.

Apartmentcomplex 26 Pearl located in Odessa, Ukraine

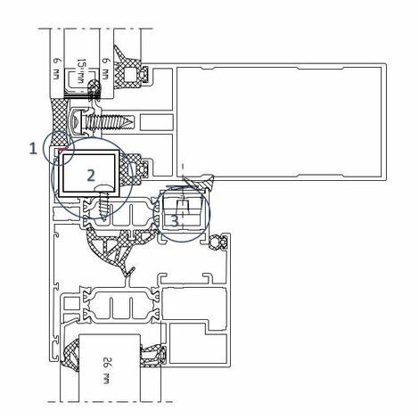
FEATURES OF THE TECHNICAL SOLUTION

1. Modified configuration of structural seam profile
2. Special spacer for greater tightness
3. Sleeve for easy positioning

THE CONFIGURATION OF A STRUCTURAL SEAM

The profile assumes the presence of an additional “whisker”, which allows to achieve a more correct proportion of the connecting elements. In addition, it ensures the contact of the sealant exclusively with aluminum, which increases the tightness of the seam, ensures the durability of operation.

SPECIFIC DISTANCE PIECE AND SLEEVE

It makes the fastening point of the sash of the window in the façade more warm, which allows to achieve greater energy efficiency of the solution. And from the point of view of installation, the spacer and mounting sleeves help to quickly and easily ensure the correct positioning of the sash in the structural facade.

Day after day we are moving towards our own mission: to improve the living and working environment of people, improving the quality of buildings all over the world! Together with our partners.

Together for the better.

 

Involved stakeholders

Fabricator

  • Interwindows

Other stakeholder

  • Kadorr Group (Project developers)